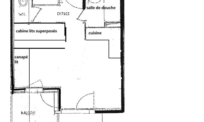
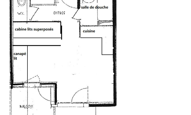
Résidence Joker :VAL THORENS location: Studio cabine entièrement rénové pour 4 personnes au calme
JOKER 26 m²En résumé
- Nombre de pièces : - Nombre de pièces
 
- Superficie : - 26 m²
 
- Cuisine : - Cuisine
 
- Nombre de chambres : - Nombre de chambre
 
- Nombre de salles de bain / douche : - 1 Salle(s) de bain / douche
 
- Exposition Sud 
- Lave Vaisselle 
Équipements
- Equipement Séjour : - Télévision
 
- Equipement Cuisine : - Bouilloire
- Grille-pain
- Lave-vaisselle
 
- Services non inclus : - Draps
 
Services
- Services non inclus : - Draps
 
Présentation
Descriptif détailléLa résidence LE JOKER est située à l'entrée de la station proche du centre commercial de Caron et du centre sportif.
L'accès aux pistes est à 50 mètres.
Cet appartement de
...Voir plusL'accès aux pistes est à 50 mètres.
Cet appartement de
Disponibilités
Situation dans la station
Destination
              Val Thorens
              Coordonnées GPS
Latitude : 45.29749000
Longitude : 6.57890400
 
             
                    




























