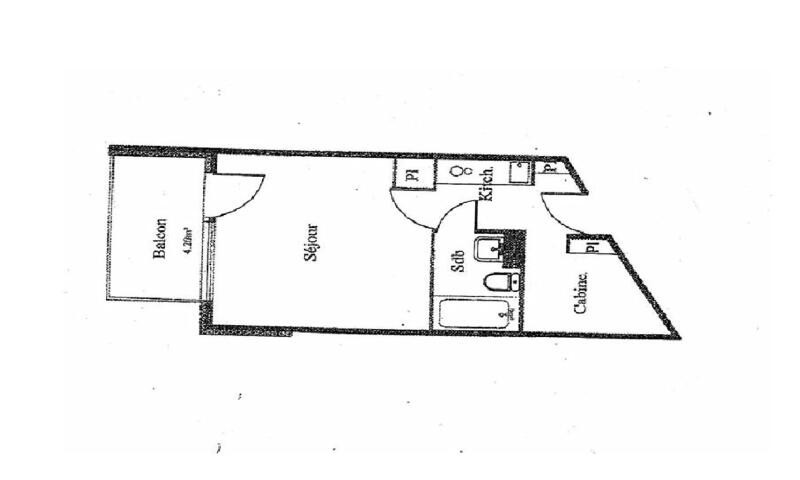
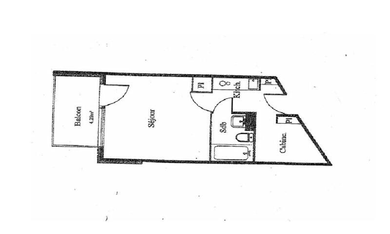
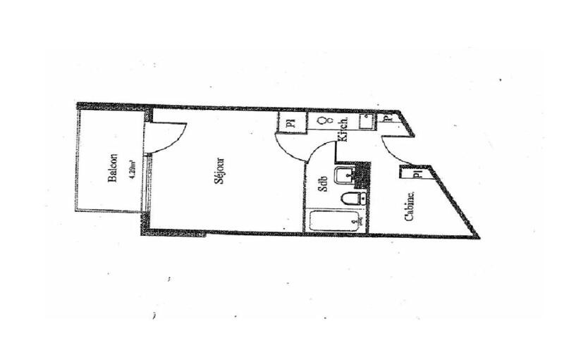
Résidence Cuzco :Charmant studio cabine de 4 personnes à VAL THORENS, skis au pied, avec balcon et belle vue montagne (sud)
TEMPLES DU SOLEIL - CUZCO 24 m²En résumé
- Nombre de pièces :
- Nombre de pièces
- Superficie :
- 24 m²
- Cuisine :
- Cuisine
- Nombre de chambres :
- Nombre de chambre
- Nombre de salles de bain / douche :
- 0 Salle(s) de bain / douche
- WiFi gratuit

- Exposition Sud

- Lave Vaisselle

Équipements
- Ascenseur :
- Ascenseur
- Equipement Séjour :
- Télévision
- Equipement Cuisine :
- Bouilloire
- Cafetière
- Grille-pain
- Lave-vaisselle
- Salle de bains :
- Sèche-cheveux
- Services inclus :
- WIFI
- Services non inclus :
- Draps
Services
- Services inclus :
- WIFI
- Services non inclus :
- Draps
Présentation
Descriptif détailléLa résidence les Temples du Soleil/ Pierre et Vacances se situe dans le bas de la station, avec un accès direct sur les pistes.
Dans la résidence vous trouverez une superette,
...Voir plusDans la résidence vous trouverez une superette,
Disponibilités
Situation dans la station
Destination
Val Thorens
Coordonnées GPS
Latitude : 45.29689400
Longitude : 6.57585400





















